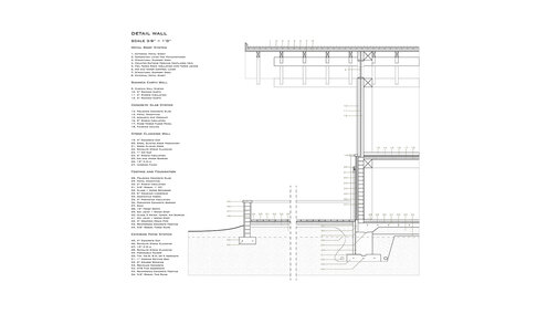
ARCH 311-Fieldstone

ARCH 311 Student Work
  • ARCH 311 Student Work
    ARCH 311- Firestone
  • ARCH 311- Firestone
    ARCH 311- Firestone
  • ARCH 311- Firestone
    ARCH 311- Firestone
  • ARCH 311- Firestone
    ARCH 311- Firestone
  • ARCH 311- Firestone
    ARCH 311- Firestone
  • ARCH 311- Firestone
    ARCH 311- Firestone
  • ARCH 311- Firestone
    ARCH 311- Firestone
  • ARCH 311- Firestone
    ARCH 311- Firestone
  • ARCH 311- Firestone
    ARCH 311- Firestone
  • ARCH 311- Firestone
    ARCH 311- Firestone

Team:

Nathan Rannells and Ashton Olvera

Mentor:

Ally Pierce

The Fieldstone Vineyard utilizes sustainable materials and design practices to showcase Napa Valley's natural beauty. A clear separation of production and restaurant spaces allows multiple levels of guest experience to coexist without disrupting one another. While minimizing undesirable views, guests are provided with 270 degrees of framed views toward our vineyards and Napa Valley beyond, fostering a deep connection between the built and natural environment.